Силовые трансформаторы предназначенные для питания собственных нужд (СН) подстанций и электростанций.
Выбор трансформаторов собственных нужд
13 мая, 2012
Состав потребителей собственных нужд (с. н.) электрических подстанций зависит от типа подстанции, мощности трансформаторов, наличия синхронных компенсаторов, типа электрооборудования.
Наиболее ответственными потребителями собственных нужд подстанции являются оперативные цепи, система связи, телемеханика, система охлаждения трансформаторов и СК, аварийное освещение, система пожаротушения, электроприемники...ТС, ТСЗ - СВЭЛ
20 марта, 2012
«СВЭЛ - РосЭнергоТранс» предлагает сухие трансформаторы с литой изоляцией ТС, ТСЗ для различных областей применения:
Силовые распределительные трансформаторы общего назначения;
Трансформаторы для собственных нужд электростанций и других объектов;
Преобразовательные трансформаторы для питания электропривода постоянного тока в металлургической, буровой, нефтегазодобывающей и...ОЛС-СЭЩ
9 февраля, 2012
Силовые трансформаторы малой мощности ОЛС-СЭЩ-0,63/6 (10) и ОЛС-СЭЩ-1,25/6 (10), производства ЗАО "Группа компаний "Электрощит"-ТМ Самара", предназначены для установки в комплектные распределительные устройства КРУ внутренней и наружной установки, а также в сборные камеры одностороннего обслуживания (КСО), являются комплектующими изделиями. Трансформаторы обеспечивают питание цепей...ОЛС - СЗТТ
21 января, 2012
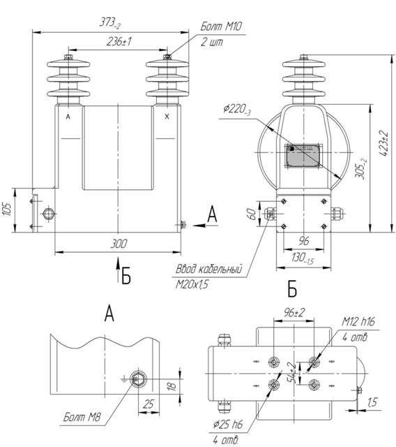
Трансформаторы ОЛС, производства ОАО Свердловский завод трансформаторов тока (СЗТТ), предназначены для обеспечения питания цепей собственных нужд пунктов секционирования и автоматического включения резерва (АВР) электрических сетей 6, 10 кВ частоты 50 или 60 Гц.
Трансформаторы изготавливаются в климатическом исполнении «У» или «Т» категории размещения 2 по ГОСТ 15150.
Рабочее положение...ТМП, ТДП, ТД, ТДС - ЧТЗ
19 мая, 2011
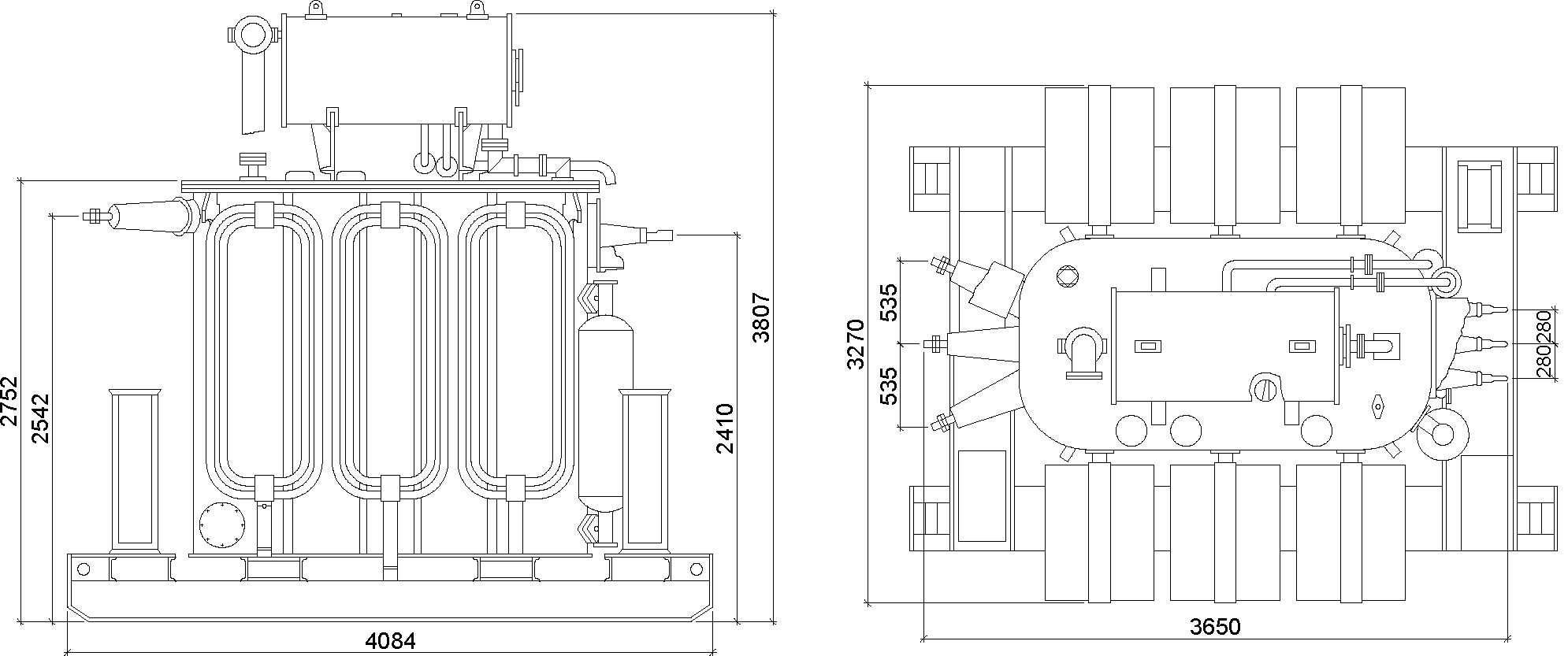
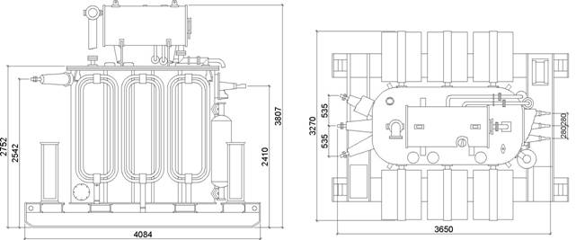
Трансформаторы силовые трехфазные, двухобмоточные, масляные, типа ТМП, ТДП, ТД, ТДС производства ЧТЗ с естественной циркуляцией масла и принудительной циркуляцией воздуха, с переключением ответвлений без возбуждения (ПБВ), с диапазоном регулирования ±2х2,5%, предназначены для преобразования напряжения в сетях 35 кВ, повышенной стойкостью к токам короткого замыкания.
Изготавливается для стран...ТДНС, ТРДНС - ЧТЗ
13 апреля, 2011
ТДНС, ТРДНС - трансформатор силовой масляный, трехфазный, двухобмоточный, с естественной циркуляцией масла и принудительной циркуляцией воздуха, с регулированием напряжения под нагрузкой (РПН), с диапазоном регулирования ±8х1,5% и повышенной стойкостью к токам короткого замыкания, предназначен для собственных нужд электростанций.
Эти трансформаторы изготавливаются Чирчикским трансформаторным...ТМП, ТДП, ТД, ТДС - ЧТЗ
13 апреля, 2011
Трансформаторы трехфазные, двухобмоточные, масляные, с естественной циркуляцией масла и принудительной циркуляцией воздуха, с переключением ответвлений без возбуждения (ПБВ), с диапазоном регулирования ±2х2,5%, предназначены для преобразования напряжения в сетях 35 кВ, повышенной стойкостью к токам короткого замыкания, выпускаемые Чирчикским трансформаторным заводом.
Изготавливается для стран...ТДНС-10 000/35-85 У1 и ТДНС-16 000/35-85 У1
13 апреля, 2011
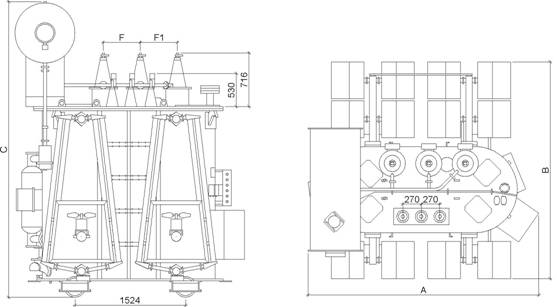
Трансформаторы серии ТДНС-10 000/35-85 У1 и ТДНС-16 000/35-85 У1, выпускаемые Чирчикским трансформаторным заводом, силовые трехфазные двухобмоточные с масляным охлаждением с дутьем, с переключением ответвлений под нагрузкой и повышенной стойкостью к токам короткого замыкания предназначены для собственных нужд электростанций.
Классификация
Трансформаторы классифицируются по номинальной мощности.
Структура...
































